- Bel espace aquatique
- Calme et reposant
- Activités
Le Camping Sunêlia La Clémentine vous accueille dans son cadre d'exception au coeur du Parc National des Cévennes, le lieu idéal pour passer des vacances reposantes dans le Gard dans une ambiance familiale et conviviale. Séjournez dans notre parc de 12 hectares, et choisissez le confort de nos hébergements, ou bien opter pour le camping traditionnel sur l'un de nos emplacements spacieux et ombragés avec ou sans sanitaire individuel. Sur place, vous pourrez découvrir notre espace aquatique composé de son lagon et de sa plage de sable fin de 3500 mètres carrés ainsi que de ses 3 piscines chauffées adaptées à l'ensemble de la famille. Tout au long de votre séjour, vous profiterez de l'ensemble de nos animations, de notre mini-club et des services proposés, tels que le multi sport, les terrains de pétanque, l'aire de jeux, le mini-golf ou encore le trampoline géant. Nos commerces (bar, restaurant et épicerie) sont ouverts de l'ouverture à la fermeture du camping. Aux alentours du camping, partez à la découverte de la région de l'Occitanie et ses nombreuses visites touristiques.
L’établissement a reçu cette distinction basée sur les notes des clients concernant leur satisfaction du camping, sa localisation, la qualité de la réception et la qualité des animations.

Cet établissement a obtenu l'écolabel Clef Verte pour sa démarche environnementale en faveur d'un tourisme durable.
Emplacement
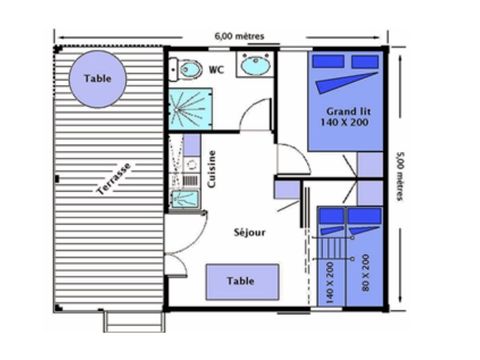
Chambres
Propreté
9 septembre 2025 à 06:31:50
29 août 2025 à 15:53:05